【检测原理】
系统整体采用工业相机在线图像扫描的工作原理,在生产线高速生产的状态下,采用特定波长的高亮LED工业线光源照射产品表面,通过工业相机实时扫描并采集光源照射处的产品图像。相机采集到的薄膜图像经过IQD-Fast图像算法进行瑕疵识别处理。由于瑕疵的成像图片与正常产品的成像图片存在灰阶差异,通过深度学习处理、从而能够精准发现产品的缺陷;同时根据事先采集各类瑕疵的图像特征并记录缺陷库,实现瑕疵在线检测、分类与后续处置。
【检测缺陷类型】
毛面亮点、毛面铜粒、凹凸点、褶皱、氧化点、黄点、黑点、水印、划痕、水波纹、毛面异物、针孔等问题。

【检测设备基本参数】
1、检测幅宽:1350mm
2、检测厚度:3um~20um
3、运行速度:0-35m/min
4、检测面:正面和反面
5、检测的最小尺寸精度:CD:0.065mm/pixel MD:0.065mm/pixel
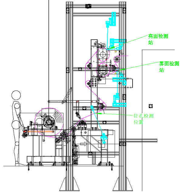
【系统整体结构】

【检测系统功能】
1、检测设置分析软件:此软件用于对铜箔检测进行设置,设置相机、视觉相关和被
2、高级智能分类:根据缺陷类型,精准判别,发送报警信号
3、检测实时监测:用于处理和分析检测结果
4、报表软件:允许用户使用数据中的历史数据生成定制的报表
CCD表面检测仪额外附带GC-CWGray软件,可实现对图像灰度的分析
【应用案例】
